HZ-120 Wide-Diameter Centrifugal Barrel Finisher
HZ-120 Centrifugal Barrel
Finishing Machine
The Mid-Capacity Centrifugal Barrel Machine for Wider Parts and Mixed-Job Production
The HZ-120 is the entry point into Mass Finishing’s wide-diameter centrifugal barrel finisher lineup—and the machine that contract manufacturers and job shops buy when they need a centrifugal finisher that handles the full range of parts that walk through their door.
What makes the HZ-120 fundamentally different from the high-efficiency models (HZ-60 and HZ-85) is barrel geometry. Where those machines use long, narrow barrels (~6″ diameter) designed for elongated parts like shafts and blades, the HZ-120’s barrels measure 17″ L x 10.25″ D—nearly double the diameter. This wider profile accommodates parts up to 16″ long and 9.5″ in diameter: pump housings, valve bodies, gear blanks, flanged fittings, die-cast brackets, and the stocky, irregular-shaped components that narrow-barrel machines cannot accept.
With 4.7 cubic feet of total capacity and 10 HP of motor power, the HZ-120 delivers more batch volume per cycle than any high-efficiency model in the lineup. For job shops and contract manufacturers who process a rotating mix of part numbers, materials, and industries, the wide-diameter barrel means fewer limitations on what you can quote and fewer parts you have to turn away or hand-finish.
Machine Type: Wide Diameter
Max Part Size: 16″ L x 9.5″ D
Barrel Dimensions: 17″ L x 10.25″ D
Popular Industries: Contract Manufacturing & Job Shops
Why Wide-Diameter Barrels Change What You Can Finish
Every centrifugal barrel finisher produces the same type of force: media pressed against parts through planetary barrel rotation. But the barrel’s dimensions determine what parts can go inside. The high-efficiency models (HZ-60, HZ-85) excel at long, narrow components because their barrels are deep but only ~6″ wide. The HZ-120 solves the opposite problem: parts that are wider, bulkier, or more irregularly shaped than a narrow barrel can accommodate.
At 10.25″ in diameter, the HZ-120’s barrels give you the clearance to load parts that would jam in or simply not fit into a 6″ bore—pump impellers, manifold bodies, cast housings, large flanges, and multi-feature machined components with protruding bosses or wide profiles. The 17″ barrel length handles part lengths up to 16″, which covers the majority of mid-size machined and cast components.
Variable frequency control reaches 150 RPM. While the high-efficiency models reach 225 RPM, the HZ-120’s wider barrel radius generates comparable centrifugal force at lower rotation speeds—the wider swing path compensates for the RPM difference. The result is effective deburring, edge radiusing, and surface refinement on heavier, wider parts without the extreme speeds that could damage delicate features.
Why Contract Manufacturers and Job Shops Choose the HZ-120
10.25″ barrel diameter for wider parts
The HZ-120’s defining advantage is barrel width. At over 10 inches in diameter, these barrels handle parts that narrow-barrel machines (HZ-60, HZ-85) physically cannot fit—pump housings, valve bodies, gear blanks, flanged brackets, and bulky castings up to 9.5″ across.
4.7 cubic feet of batch capacity
More total volume than any high-efficiency model in the lineup. For job shops running back-to-back batches of varying part sizes, this capacity means fewer cycles per shift and more parts out the door. It’s also enough volume to run heavier parts—cast iron housings, steel flanges—without overloading.
Up to 52 separate chambers
With 12 divider slots per barrel (13 chambers each, 52 total), the HZ-120 isolates different part numbers, materials, or customer orders within the same cycle. For contract manufacturers processing five different part numbers for three different customers, dividers keep everything separated without running five separate batches.
Handles the widest part variety
Job shops don’t run one part—they run hundreds of different part numbers across materials and geometries. The HZ-120’s wide barrels accept everything from compact fittings to bulky housings, which means one machine covers the finishing needs for a diverse part mix instead of requiring separate narrow and wide machines.
Air-driven cover lift (standard)
Wide-diameter barrels are heavier when loaded with media and parts. The pneumatic cover lift removes barrel lids without manual lifting—important for shops running multiple batches per shift where operator fatigue directly affects throughput and safety.
Full production customization
PLC touchscreen with recipe storage, internal vibratory separator, drain pan, infrared safety curtains, automatic door opener, and centrifuge wastewater system. Contract manufacturers can configure the HZ-120 to match their existing floor layout and integrate it into existing production flows.
HZ-120 Barrels
The HZ-120 features four hexagonal barrels measuring 17″ L x 10.25″ D—the first wide-diameter barrels in the HZ-Series lineup. At nearly double the diameter of the high-efficiency models’ ~6″ barrels, the HZ-120 accommodates a fundamentally different category of part geometry. Removable lids are secured with cam locks, and the air-driven cover lift handles lid removal via toggle switch.
What the Wider Barrel Means in Practice
The 10.25″ bore diameter and 17″ length give the HZ-120 a part envelope of 16″ L x 9.5″ D—enough to handle parts that are too wide, too stocky, or too irregularly shaped for narrow-barrel machines. Some examples of parts that fit the HZ-120 but would not fit the HZ-60 or HZ-85:
- Cast or machined pump and motor housings (6″9″ diameter)
- Manifold bodies and hydraulic valve blocks
- Gear blanks, sprockets, and pulleys up to 9.5″ across
- Flanged pipe fittings and coupling halves
- Die-cast brackets and structural components with wide profiles
- Rubber and plastic molded parts (deflashing and surface refinement)
Part Separation With Up to 13 Chambers Per Barrel
Each HZ-120 barrel has 12 divider slots, creating up to 13 isolated chambers per barrel—52 separate compartments across all four barrels. For contract manufacturers running multiple customer orders or mixed part numbers, this means every job stays separated in a single cycle. Dividers are made from NYLOIL® cast nylon with built-in oil lubrication for durability and chemical resistance.
A second set of barrels enables continuous operation—load the next batch while the current cycle runs.
Get Stocked Up on the Essentials
Shop our media and compound store
HZ-120 Recommended Accessories
Part & Media Separator
- Simplify the media & part separation process
- Dump fully loaded barrels
- The machine vibrations separate the media & parts out of the machine and into bins
Processing Table
- Collects water and drainage during the loading/unloading process
- Grip strut floor surface to prevent operator slips and falls
Barrel Dividers
- Create separate chambers inside each of your barrels
- Reduce part-on-part impingment
- Available for all HZ-Series models (except HZ-12)
PLC Touchscreen
- Store processes as recipes for easy process selection
- Replaces the analog cycle start buttons
- Allows for better monitoring of machine use and time
Additional HZ-120 Specs & Resources
Specifications
Main Motor |
|
Barrel Rotation Motor |
|
Machine Voltage |
|
Total Capacity |
|
Approximate Shipping Weight |
|
Drive |
|
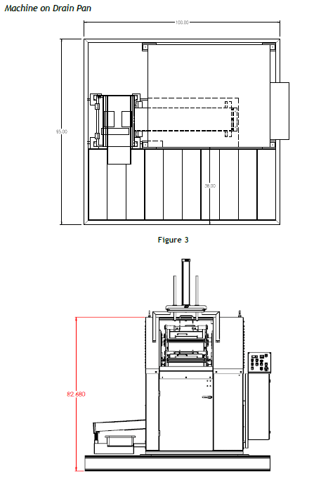
Overall Dimensions |
|
Machine Construction |
|
Paint |
|
Barrel Construction |
|
Barrel Liners |
|
Barrel Cover Lift-(Optional) |
|
Control Panel |
|
Variable Speed Control |
|
Brake |
|
Safety Interlock |
|
- HZ-120 Demo Model for Sale
- An HZ-40 next to an HZ-120 in a production setting.

Options
Vibratory Media Separator |
|
Spray Header for Separator |
|
Drain Pan |
|
Processing Table and Sludge Tank |
|
Barrel Dividers |
|
PLC Controller |
|
Rinse Screen |
|
Infrared Safety Light Curtains |
|
Light Tower Indicator |
|
Media Return System |
|
Custom Logo/Paint |
|
Centrifuge Module – CF55 SD Series MicroseparatorTM |
|
Automatic Door Opener |
|
Media/Compound |
|
Media Storage Rack |
|
Wide-Diameter vs. High-Efficiency: Which Barrel Geometry Do You Need?
|
Factor |
High-Efficiency (HZ-60 / HZ-85) |
Wide-Diameter (HZ-120) |
|
Barrel Diameter |
~5.8″ |
10.25″ |
|
Max Part Diameter |
5.25″–5.5″ |
9.5″ |
|
Max Part Length |
25.25″ (HZ-60) / 33″ (HZ-85) |
16″ |
|
Total Capacity |
2 cu ft (HZ-60) / 3 cu ft (HZ-85) |
4.7 cu ft |
|
Max RPM |
225 |
150 |
|
Best Part Shape |
Long, narrow (shafts, blades, barrels, rods) |
Wide, stocky (housings, gears, flanges, castings) |
|
Primary Buyer |
Single-industry manufacturers (automotive, aerospace, firearms, knives) |
Contract manufacturers and job shops serving multiple industries |
Choose the HZ-120 if your parts are wider than 5.5″ in diameter, your part mix varies significantly from job to job, or you need a single machine that handles the broadest range of part geometries. The HZ-120 is the go-to centrifugal barrel finisher for contract manufacturers who quote diverse work.
Choose a high-efficiency model if your parts are primarily long and narrow (under 5.5″ diameter). The narrow-barrel geometry concentrates media pressure more aggressively along the part length, which is advantageous for shafts, blades, and rod-shaped components.
Not sure which geometry fits your part mix? Send us a sample part or share your typical part dimensions—we’ll recommend the right barrel configuration.
Are You Interested in the HZ-120?







